This website uses a variety of cookies, which you consent to if you continue to use this site. You can read our Privacy Policy for details about how these cookies are used, and to grant or withdraw your consent for certain types of cookies.
Skip to main content

The 9-Inch Parshall Flume

The 9-inch Parshall Flume is a popular size in the Parshall Flume family. The flume is equally at home measuring surface waters, wastewater flows, and water rights.

Applications

The 9-inch Parshall Flume is useful in a number of applications, including:

  • Dam seepage
  • Industrial pretreatent monitoring
  • Mine discharge
  • Surface waters
    • Smaller creeks and streams
  • Wastewater treatment plants
    • Influent
    • Effluent
    • Interplant flows
    • Lagoons
  • Water rights

Configurations

The 9-inch Parshall Flume is available in several configurations:

  • Plain (where inlet / outlet transitions are by others)
  • End adapters (connecting to pipes and flanges)
    • Stubs and flanges up to 36-inches [91.44 cm] can be accommodated
  • Metering manholes (factory integration into a fiberglass manhole structure)
    • When integrating a 9-inch Parshall Flume into a metering manhole, the manhole barrel must be at least 48-inches [1.22 m] in diameter.
  • Wing Walls
    • Standard wing walls span channels up to 5-feet 6-inches [1.67 m] wide.

Flume Accuracy

Laboratory investigations have shown Parshall Flumes have shown to be accurate to within +/-2% under free-flow conditions.

Once approach conditions, installation, and construction tolerances are considered, it is more practical to expect free-flow accuracy to be +/-5% (ASTM D1941).

Should the flume submerge, either dedicated submerged flow or universal flow equations should be used.

The accuracy of a Parshall Flume can also be affected by the flume settling out of position. Corrections to the flow equations have been developed to account for this.

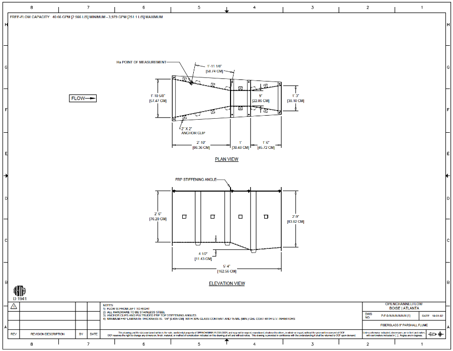
Flume Dimensions

dimensional drawing of a fiberglass 9-inch Parshall flume

It's important to remember that Parshall Flumes are not scale models of each other. While the flumes are similar in layout, they do differ in section lengths and convergence / divergence angles.

Free-Flow Equation

The free-flow equation for Parshall Flumes is:

Equation — Parshall Flume Free-flow

Q = free flow rate (cfs / m3/s)
K = flume discharge constant (varies by flume size / system of units)
Ha = depth at the point of measurement (feet / meters)
n = discharge component (dimensionless, depends upon flume size)

For the 9-inch Parshall Flume:

Minimum Head (ft) 0.10 Minimum Head (m) 0.0305
Minimum Flow Rate (cfs) 0.0906 Minimum Flow Rate (l/s) 2.566
Maximum Head (ft) 2.00 Maximum Head (m) 0.6096
Maximum Flow Rate (cfs) 8.866 Maximum Flow Rate (l/s) 251.1
Equation (cfs, ft) 3.07*H1.53 Equation (l/s, m) 535.4*H1.53

Discharge Table

The free flow discharge table for the 9-inch Parshall is available for download.

The table provides:

  • Top-down view of the flume with the Ha (primary point of measurement) shown
  • Discharge equations in SI and Imperial units
  • Flume's accuracy
  • Submergence Transition (St)
  • Source for the table's information

Materials

The 9-inch Parshall Flume is available from Openchannelflow in a range of materials, including:

Of the four materials, fiberglass provides the greatest flexibility when it comes to customization.

Submergence Transition

When downstream conditions are such that they restrict the flow out of a flume, the flume is said to be submerged. The submergence transition (St) is the point at submergence needs to be corrected for so that indicated and actual flow rates match.

Equation — Flume Submergence Transition

Q = free flow rate (cfs / m3/s)
K = flume discharge constant (varies by flume size / system of units)
Ha = depth at the point of measurement (feet / meters)
n = discharge component (dimensionless, depends upon flume size)

For the 9-inch Parshall Flume, the submergence transition occurs at 60%. If the submergence ratio is above this, the discharge needs to be corrected.

Related Blog Posts

Explore more insights in our blog.

Browse all Blogs
LOCATIONS IN ATLANTA, GA & BOISE, ID

Start your project today