The Small 60º V Trapezoidal Flume is smallest of the Trapezoidal Flume family. Due to its size, the flume is primarily used to measure the flow in furrows, ditches, and small channels. The flume has good low-end resolution and passes solids well.
Applications

The Small 60º V Trapezoidal Flume can be used in several flow applications - although not as many as its larger brethren:
- Seepage monitoring
- Ditch and furrow flows
- Small surface water gauging
- Industrial pretreatment monitoring
- Furrows, ditches, small canals
- Spring discharge
Configurations
The Small 60º V Trapezoidal Flume can be configured in several different ways:
- Plain flume
- Transitions into / out of the flume are formed on site
- End adapters
- For connection to inlet / outlet pipes and flanges
- Metering manholes
- Factory integration into a fiberglass flow monitoring manhole
- Wing walls
- To span rectangular channels
Flume Accuracy
Trapezoidal Flumes - when well installed and with good flow conditions - is capable of measuring flows as accurately as +/-5% (U.S. EPA). The accuracy is similar to other flume types.
In the field, expect accuracy to be +/-5% with good approach and installation conditions.
Flume Dimensions
Trapezoidal Flumes have been described in research publications - and not national publications like the Parshall Flume - so no national or organizational standards exist.
Free-Flow Equation
The general free-flow equation for 60º V Trapezoidal Flumes is as follow:

For the Small Trapezoidal Flume, the values are:
| Minimum Head (ft) | 0.09 | Minimum Head (m) | 0.0274 |
| Minimum Flow Rate (cfs) | 0.0031 | Minimum Flow Rate (l/s) | 0.0880 |
| Maximum Head (ft) | 0.27 | Maximum Head (m) | 0.0823 |
| Maximum Flow Rate (cfs) | 0.0529 | Maximum Flow Rate (l/s) | 1.497 |
| Equation (cfs, ft) | 1.55*H2.58 | Equation (l/s, m) | 941.2*H2.58 |
Discharge Table
The Small 60º Trapezoidal Flume is available for download.
The table provides:
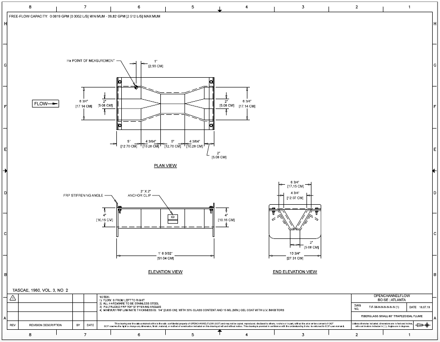
- Plan view showing the point of measurement (Ha)
- Discharge equations for a variety of units
- Flume accuracy
- Submergence Transition (St)
- Source of the table
Materials

Openchannelflow's offers Small 60º Trapezoidal Flumes in three materials:
Of these, fiberglass construction allows the greatest range of customization.
Submergence Transition
A flume is said to be submerged when the downstream conditions are such that the flow out of a flume is restricted - the indicated flow is greater than the actual flow out of the flume.
For a Trapezoidal Flume the primary point of measurement (Ha) is in the first section of the flume - where the walls are parallel and before the flume contracts. The secondary point of measurement (Hb) is in the last section of the flume - again, where the walls are parallel after the flume has expanded.
The Trapezoidal Flume has a flat floor, making zero elevation the same for both points of measurement - unlike the Parshall Flume.

As downstream conditions restrict the flow out of the flume, the indicated flow and actual flow rates begin to diverge (the indicated flow rate being higher).
At some point the difference between these two flow rates is such that the flow rate needs to be corrected. This point is termed the Submergence Transition (St) and for Trapezoidal Flumes it occurs at 75-85%.
Related Blog Posts
Explore more insights in our blog.