The 2-Inch 45º WSC (No 4) Trapezoidal Flume is primarily used to measure surface water flows, but is occasionally used to measure industrial discharges (usually in Packaged Metering Manholes). The flume's flat bottom mean and v-shaped cross-section allow the flume to pass solids well. While not as common as the 60º V Trapezoidal Flumes (Small, Large, Extra Large), its not uncommon to see the 2-inch 45º WSC out in the field.
Applications
The 2-Inch 45º WSC Trapezoidal Flume has been used successfully in a number of applications:
- Dam seepage
- Ditch and furrow monitoring
- Edge-of-field runoff
- Industrial pretreatment monitoring
- Irrigation canals
- Spring discharge
- Stream gauging
- Watershed monitoring
Configurations
The 2-Inch 45º WSC Trapezoidal Flume is available as:
- Plain flume
- End transitions formed by others
- End adapters
- For connection to pipes and flanges
- Metering manholes
- Factory integration of the flume into a fiberglass manhole
Flume Accuracy
Humpherys and Bondurant rate Trapezoidal Flumes have been rated as accurate to within +/-2%. The U.S. EPA rates then to within +/-2-5%. This accuracy is simlar to other flume types.
Under field conditions the flume should be accurate to +/-5% with proper approach and installation conditons.
Flume Dimensions
Unlike the Parshall Flume, Trapezoidal Flumes are not covered by an industry or national standard. Instead the flumes are described in various research and governmental publications.
Free-Flow Equation
The general free-flow equation for many Trapezoidal Flumes is:

For the 2-Inch 45º WSC Trapezoidal Flume the values are:
| Minimum Head (ft) | 0.11 | Minimum Head (m) | 0.0335 |
| Minimum Flow Rate (cfs) | 0.0270 | Minimum Flow Rate (l/s) | 0.7647 |
| Maximum Head (ft) | 0.88 | Maximum Head (m) | 0.2682 |
| Maximum Flow Rate (cfs) | 2.513 | Maximum Flow Rate (l/s) | 71.15 |
| Equation (cfs, ft) | 3.32*H2.18 |
Discharge Table
The flow table for the 2-Inch 45º WSC Trapezoidal Flume is available for download.
The table provides:
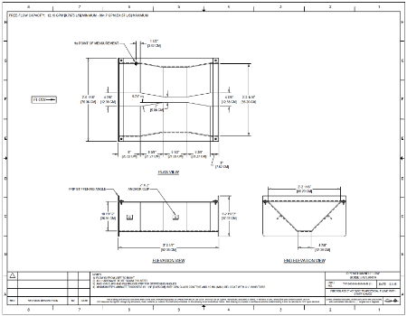
- Plan view showing the point of measurement (Ha)
- Discharge equations for a variety of units
- Flume accuracy
- Submergence Transition (St)
- Source of the table
Materials
The 2-Inch 45º WSC Trapezoidal Flume is offered in three different materials by Openchannelflow:
- Fiberglass (FRP)
- Low cost and light weight
- Galvanized steel
- Rugged, abrasion resistant
- Stainless steel
- Corrosion and abrasion resistant
Of these materials, fiberglass offers the greatest range of customization.
Submergence Transition
When downstream conditions are such that the flow out of a flume is restricted, that flume is said to be submerged.
For a Trapezoidal Flume the primary point of measurement (Ha) is in the first section of the flume - before the flume contracts. The secondary point of measurement (Hb) is in the last section of the flume - after the flume has expanded.
Unlike the Parshall Flume whose floor changes elevation, the Trapezoidal Flume has a flat floor, making zero elevation the same for both points of measurement.

As downstream conditions restrict the flow out of the flume, the indicated flow and actual flow rates begin to diverge (the indicated flow rate being higher). A point is reached where the indicated flow rate needs to be corrected to bring it into line with the actual flow out of the flume. This Submergence Transition (St) occurs at 75-85% for Trapezoidal Flumes.
Related Blog Posts
Explore more insights in our blog.